- Messaggi: 44
- Ringraziamenti ricevuti 0
nuova zona calpestio
23/03/2016 10:36
Autore della discussione
nuova zona calpestio #30467
Ciao,
sono alle prese con un'altra idea per rendere il mio giardino più confortevole e funzionale:
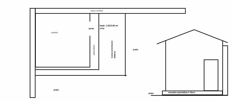
ho una casetta in legno di circa 9 mq, situata ad angolo, che poggia su una base di cemento piastrellato di circa 12 mq.
Molte volte lo spazio esiguo interno mi costringe a svolgere dei lavori (giardinaggio, falegnameria, meccanica ecc) all'esterno della casetta in prossimità della porta in quanto ho accesso comodo a tutte le attrezzature.
Naturalmente con il tempo la zona di giardino appena al di fuori della casetta, essendo calpestata in continuazione giornalmente, è diventata quasi priva di erba ed il terreno molto duro.
Ho quindi pensato di creare un'area prospicente l'ingresso della casetta sulla quale poter lavorare senza la paura di sporcare il manto erboso (tra l'altro ancora da ripristinare) e che fosse anche piacevole nel complesso.
Non vorrei usare il solito mattonato e, possibilmente, non vorrei dover costruire massetti in cemen
to o cose del genere.
Cosa mi consigliereste?
sono alle prese con un'altra idea per rendere il mio giardino più confortevole e funzionale:
ho una casetta in legno di circa 9 mq, situata ad angolo, che poggia su una base di cemento piastrellato di circa 12 mq.
Molte volte lo spazio esiguo interno mi costringe a svolgere dei lavori (giardinaggio, falegnameria, meccanica ecc) all'esterno della casetta in prossimità della porta in quanto ho accesso comodo a tutte le attrezzature.
Naturalmente con il tempo la zona di giardino appena al di fuori della casetta, essendo calpestata in continuazione giornalmente, è diventata quasi priva di erba ed il terreno molto duro.
Ho quindi pensato di creare un'area prospicente l'ingresso della casetta sulla quale poter lavorare senza la paura di sporcare il manto erboso (tra l'altro ancora da ripristinare) e che fosse anche piacevole nel complesso.
Non vorrei usare il solito mattonato e, possibilmente, non vorrei dover costruire massetti in cemen
to o cose del genere.
Cosa mi consigliereste?
Accedi o Crea un account per partecipare alla conversazione.
24/03/2016 09:20
nuova zona calpestio #30468
Pur non avendo più un prato vero, a volte utilizzo la calpestabilissima gramigna rasata in estate , una soluzione al tuo problema potrebbero essere queste griglie in materiale plastico usate pure per far passare le auto.
magari puoi stendere un telo provvisorio per raccogliere i detriti di lavorazioni oppure lasciarli in loco se degradabili.
magari puoi stendere un telo provvisorio per raccogliere i detriti di lavorazioni oppure lasciarli in loco se degradabili.
E di queste incredibili giornate vai componendo la tua stagione
Accedi o Crea un account per partecipare alla conversazione.
24/03/2016 16:20
- anemonenemorosa
-
- Offline
- Administrator
-
Riduci
Di più
- Messaggi: 4324
- Ringraziamenti ricevuti 1663
nuova zona calpestio #30469
Idea classica quella di toncan
, oppure potresti usare i bancali, che sono molto resistenti e a basso costo, meglio colorati con vernice per esterni, con inserite dentro o meno le piante...
Dove vengono fatte crescere le piantine il pallet viene riempito di terra, dopo che è stato chiuso con del tnt o comunque telo taspirante da giardinaggio...
Oppure qui ci sono varie soluzioni estetiche con legno, sassi ecc...magari a cui puoi ispirarti. Se è una zona dove calpesti molto spesso (e sopratutto bisogna valutare l'esposizione) difficile prosperare per qualsiasi erba o pianta ...l'unica soluzione in questo caso (se usi una tappezzante che sia gramigna o altro) è appunto installare le reti grigliate apposite, per cui in realtà non calpesti la pianta, ma solo le griglie. Prima però va da se che devi anche migliorare il terreno lavorandolo e aggiungendo terra morbida e materiale drenante (come la pomice).
Dove vengono fatte crescere le piantine il pallet viene riempito di terra, dopo che è stato chiuso con del tnt o comunque telo taspirante da giardinaggio...
Oppure qui ci sono varie soluzioni estetiche con legno, sassi ecc...magari a cui puoi ispirarti. Se è una zona dove calpesti molto spesso (e sopratutto bisogna valutare l'esposizione) difficile prosperare per qualsiasi erba o pianta ...l'unica soluzione in questo caso (se usi una tappezzante che sia gramigna o altro) è appunto installare le reti grigliate apposite, per cui in realtà non calpesti la pianta, ma solo le griglie. Prima però va da se che devi anche migliorare il terreno lavorandolo e aggiungendo terra morbida e materiale drenante (come la pomice).
Taci. Su le soglie
del bosco non odo
parole che dici
umane; ma odo
parole più nuove
che parlano gocciole e foglie
lontane.
del bosco non odo
parole che dici
umane; ma odo
parole più nuove
che parlano gocciole e foglie
lontane.
Accedi o Crea un account per partecipare alla conversazione.
